Impact Factory
Circulaire herbestemming van de Potterij en een kantoorgebouw.

‘De impact factory moet niet gebouwd worden, ze is er al’
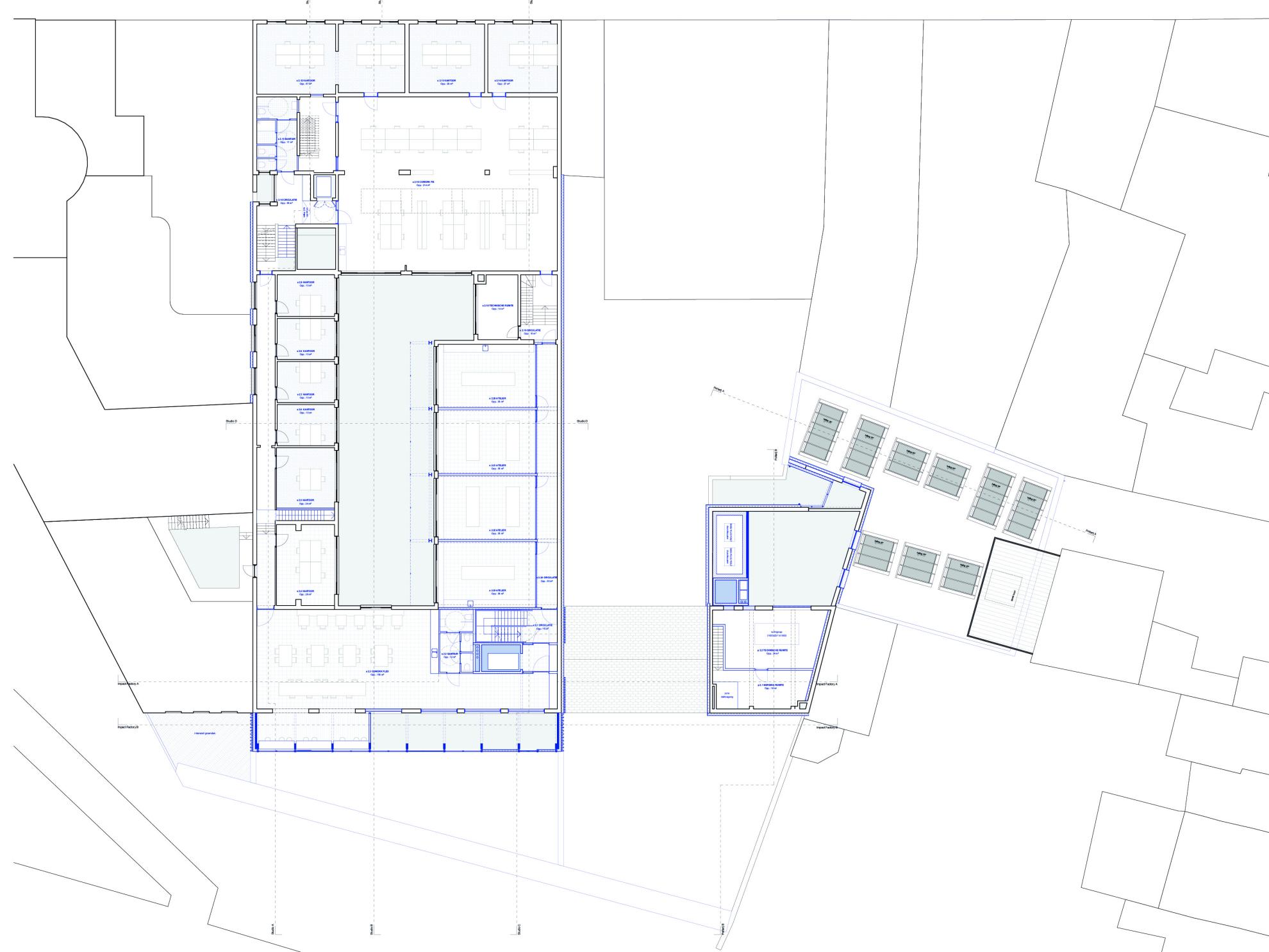
In de Mechelse binnenstad worden twee leegstaande panden gerenoveerd om samen met een gedeelte nieuwbouw op een terrein van de stad Mechelen de Impact Factory te realiseren. Het gaat enerzijds om de potterij in de Potterijstraat, een voormalige industriële wasserij, en een voormalig kantoorgebouw, zonder gelijkvloers, achter de Graaf Van Egmontstraat. De Impact Factory positioneert zich als de thuisbasis voor een nieuw soort duurzaam ondernemerschap dat aantoont dat ‘doing good business’ en ‘doing business for good’ perfect complementair kunnen zijn. De Impact Factory zal ruimte bieden voor kantoren, kleinschalige productie, ontmoeting en evenementen, en ambieert de uitvalsbasis te worden voor de circulaire economie in en rond Mechelen.
Het ontwerp trekt resoluut de kaart van maximaal behoud en minimale interventie. De basisprincipes van circulair bouwen werden van bij de eerste ontwerpstappen ingebakken in het ontwerp en blijven een toetssteen voor ontwerpkeuzes doorheen alle fases van ontwerp- en bouwproces. Zo wordt met een aantal doordachte stappen de Impact Factory klaargemaakt voor de toekomst.
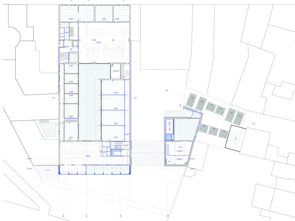
Zonder het programma al te veel te verstenen, worden in het kantoorgebouw kleine, afzonderlijke kantoren en grotere, niet opgedeelde werkruimten die collectief ingezet zullen worden, voorzien. De bestaande structuur leent zich hier perfect toe. De zuidzijde is systematisch onderverdeeld in kamers met noorderlicht en de noordzijde vormt één grote ruimte met ramen op het zuiden. De bestaande circulatie loopt volledig buitenom langs de gemene muren – met moeilijk verklaarbare niveauverschillen – en voelt erg beklemmend. Wat als we de grote ruimte in de noordvleugel vrijwaren, en een nieuwe (buiten?)circulatie voorzien aan de zuidgevel (een ‘galerij’)? Die vormt dan meteen een zonnewering voor de ateliers. Plots bevindt de binnenkoer zich als het ware op +1 en wordt ze ‘van ons’.
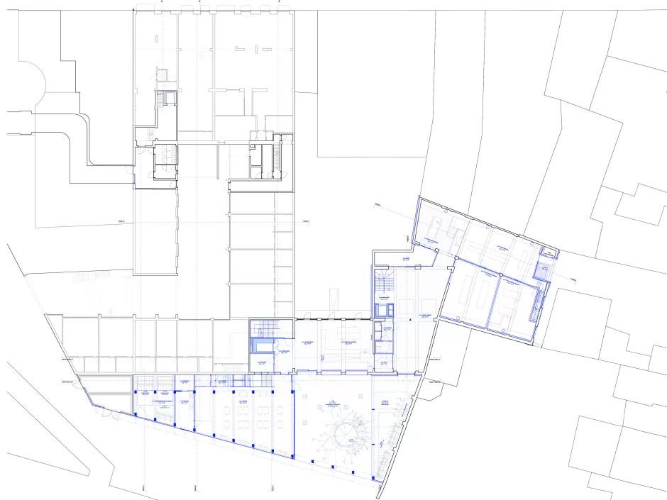
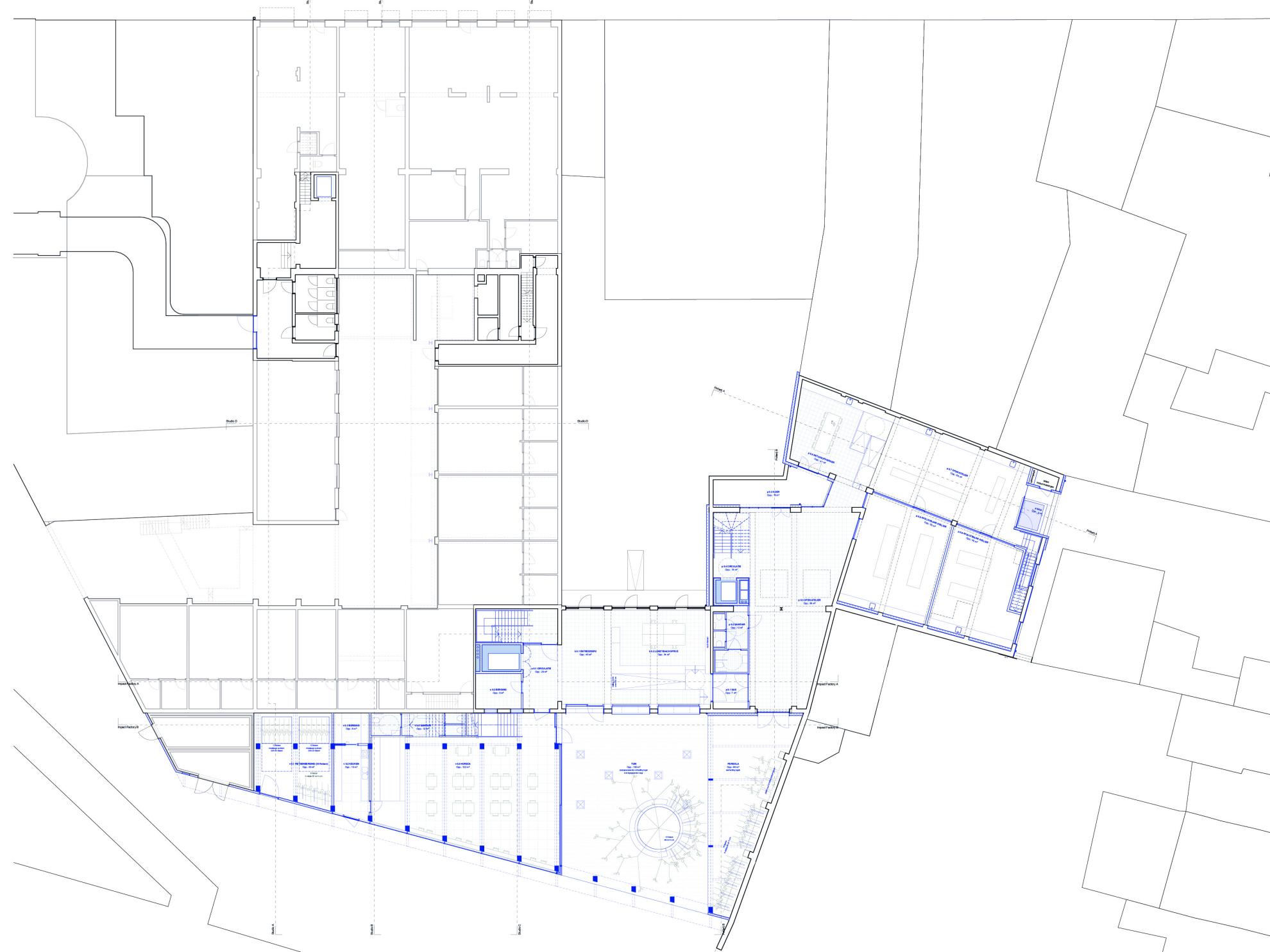
Het bezoeken van de potterij is een bijna poëtische ervaring. Het huidig enthousiaste gebruik draagt daar ongetwijfeld erg toe bij, maar ook de afgebladderde toestand en zelfs het noodzakelijk saneringsgeweld is aandoenlijk. Hier wordt aan de zuidzijde een vloerdeel en het dak erboven geschrapt waardoor een patio ontstaat. Wat overeind blijft, is een zeer bijzonder vierkant deel van twee bouwlagen aan de Potterijstraat, gedragen door een centrale kolom, en een compact bouwvolume van drie bouwlagen zonder kolommen aan de achterzijde.
De daken van studio en potterij worden verstevigd zodat ze ingezet kunnen worden als gezamenlijk dakenlandschap met daktuinen. En meteen kan zo het meest cruciale aspect van een meer performante schil worden opgepikt. Gerecupereerde serres kunnen de daktuin vervolledigen. De nieuwe liften worden tevens doorgetrokken tot op het daklandschap en komen uit in twee prachtige tuinkamers op het dak. Ze kijken net over de onmiddellijke buren op de koepels en torens van Mechelen. Omgekeerd zetten ze als lantaarns ook de impact factory zichtbaar op de stedelijke kaart.
Tot slot zorgt een gezamenlijk voorportaal voor een gedeelde inkomruimte: deels overdekt zodat droog spullen geleverd kunnen worden, en deels open als voortuin zorgt voor een verbinding van studio en potterij. Deze gecombineerde ingrepen brengen de twee gebouwen in een ongedwongen maar interessante dialoog. Een grote en een kleine broer samen.